
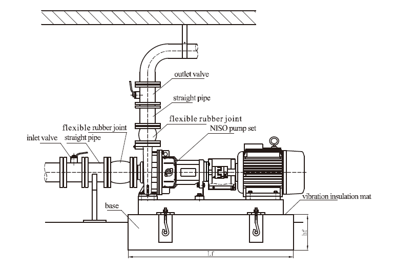
พื้นฐานการติดตั้งปั๊มน้ำ
ในการติดตั้งปั๊มน้ำนั้น เพื่อให้ปั๊มสามารถทำงานได้อย่างปลอดภัย และมีอายุการใช้งานได้อย่างยาวนานนั้น เราควรติดตั้งปั๊มให้อย่างถูกต้อง ซึ่งปั๊มน้ำของ CNP ทุกตัวจะมีคู่มือการติดตั้งปั๊มน้ำไปพร้อมกับสินค้า

ระยะทางดูดในแนวดิ่ง
ระยะทางดูดในแนวดิ่งนั้น วัดจากระยะปั๊มน้ำถึงผิวน้ำ ในทางทฤษฎีนั้น จะมีค่าน้อยกว่าหรือเท่ากับ 8 เมตร
H <= 8 เมตร
แต่ในทางปฏิบัตินั้น จะเกิดความสูญเสียมากมายที่ทำได้ ระยะ H น้อยกว่า 8 เมตร เช่น แรงเสียดทานจากท่อ, อุปกรณ์ต่างๆในไลน์ท่อเช่น วาล์ว ข้อลด ข้องต่างๆ, ระยะทางดูดในแนวราบ, ความสามารถของตัวปั๊มเอง
สรุปแล้ว ในการติดตั้งปั๊มน้ำนั้นเราควรติดตั้งปั๊มใกล้แหล่งน้ำมากที่สุด, ใช้วาล์ว หรือ ของอ ให้น้อยที่สุด, ใช้ท่อที่มีขนาดใหญ่ขึ้น 1 ขนาด

อากาศในท่อทางดูด
ท่อทางดูดของปั๊มน้ำนั้น ไม่ควรมีอากาศอยู่ในเส้นท่อ เพราะจะส่งผลให้ความสามารถในการดูดน้ำของปั๊มน้ำลดลง และอากาศในท่อทางดูดนั้น จะกลายเป็นฟองอากาศขนาดเหล็ก เมื่อไปกระทบในเส้นท่อ ปั๊มน้ำ หรืออุปกรณ์ต่างๆ จะทำให้อุปกรณ์เหล่านั้นสึกหรอได้

CHECK VALVE (NON RETURN VALVE)
ในการติดตั้งปั๊มน้ำนั้น เราควรติด check valve
ไว้ที่ท่อทางส่งของปั๊มน้ำ เพราะป้องกันน้ำไหลย้อนกลับ และลดความเสียหายจากการเกิด water hammer ในระบบท่อกับปั๊มน้ำได้

Eccentric reducer (ข้อลดแบบเยื้องศูนย์)
ในการต่อท่อทางดูดของปั๊มนั้น เราควรติดข้อลดแบบเยื้องศูนย์เพื่อขยายขนาดท่อทางดูดของปั๊มอย่างน้อย 1 ขนาด เช่น ท่อทางดูดของปั๊มเดิมมีขนาด 3นิ้ว เราก็ควรขยายเป็น 4 นิ้ว
เพื่ออะไร?
ก็เพื่อให้ปั๊มน้ำดูดน้ำได้อย่างมีประสิทธิภาพ ให้เรานึกถึง การดูดน้ำในแก้ว คนนึงใช้หลอดดูดกาแฟดูด อีกคนนึงใช้หลอดชาไข่มุกดูด
คนที่ใช้หลอดชาไข่มุกดูดย่อมสามารถดูดน้ำในแก้วได้หมดก่อน (ในทางทฤษฎี ท่อที่มีขนาดใหญ่จะมีแรงเสียดทานในเส้นท่อน้อยกว่า)
โดยการติดตั้งข้อลดแบบเยื้องศูนย์นั้นมี 2 แบบหลักๆ
1.แหล่งน้ำอยู่ต่ำกว่าปั๊ม(รูปซ้าย)
2.แหล่งน้ำอยู่สูงกว่าตัวปั๊ม(รูปขวา)

การเริ่มต้นใช้งานและการบำรุงรักษา ปั๊มน้ำ
ก่อนเริ่มใช้งาน โปรดอ่านสติกเกอร์คำเตือนบนตัวกระบอกปั๊มอย่างละเอียด
ห้ามเปิดปั๊มโดยไม่มีน้ำหรือของเหลวเด็ดขาด!
READ MORE
1. ห้ามเปิดใช้งานปั๊มจนกว่าปั๊มจะเต็มไปด้วยของเหลว
✅ กรณีติดตั้งแบบ Positive Suction Head
- ปิดวาล์วทางด้านจ่ายของปั๊ม
- คลายสกรูระบายอากาศ
- ค่อยๆ เปิดวาล์วทางด้านดูดของปั๊ม
- เมื่อน้ำไหลออกมาอย่างสม่ำเสมอ ให้ขันสกรูระบายอากาศกลับให้แน่น
✅ กรณีติดตั้งแบบ Negative Suction Head
⚠ ข้อควรระวัง: ต้องติดตั้งวาล์วกันกลับ (Check Valve) บนท่อทางดูด
- ปิดวาล์วทางด้านจ่ายของปั๊ม
- คลายน็อตระบายอากาศ
- เติมของเหลวผ่านช่องเติมน้ำจนกว่าปั๊มและท่อดูดจะเต็มไปด้วยของเหลว
- ขันน็อตระบายอากาศกลับให้แน่น
⚠ ข้อควรระวังเพิ่มเติม
- ควรระมัดระวังทิศทางของช่องระบายอากาศ เพื่อป้องกันน้ำกระเด็นไปโดนตัวบุคคล หรือทำให้มอเตอร์และส่วนประกอบอื่นๆ เสียหาย
- ให้ระมัดระวังอันตรายจากน้ำร้อนที่อาจทำให้เกิดแผลไหม้
2. ตรวจสอบก่อนเริ่มใช้งานปั๊ม
☑ ตรวจสอบว่าสลักเกลียวฐานปั๊มแน่นหรือไม่
☑ ตรวจสอบว่าแรงดันไฟฟ้าอยู่ในค่าปกติหรือไม่
☑ ตรวจสอบว่ามีการรั่วซึมของท่อหรือไม่
☑ ตรวจสอบว่าวาล์วทางด้านดูดเปิดเต็มที่หรือไม่
☑ หากติดตั้งเกจวัดแรงดัน ตรวจสอบว่าช่วงวัดแรงดันเหมาะสมหรือไม่
☑ หากติดตั้งสวิตช์แรงดัน ตรวจสอบค่าการเริ่มต้นและค่าตัดการทำงานของแรงดัน
3. ตรวจสอบทิศทางการหมุนของปั๊ม
- เปิดแหล่งจ่ายไฟ
- ตรวจสอบทิศทางการหมุนโดยดูที่พัดลมของมอเตอร์
- ทิศทางที่ถูกต้องสามารถดูได้จากลูกศรที่อยู่บนหัวปั๊ม
- ทิศทางการหมุนที่ถูกต้อง (มองจากด้านมอเตอร์) คือ หมุนทวนเข็มนาฬิกา
4. ความถี่ในการเริ่มและหยุดปั๊ม
⛔ ห้ามเปิด-ปิดปั๊มบ่อยเกินไป
- หากมอเตอร์มีกำลังไฟ ≤ 4kW : ควรเปิด-ปิด ไม่เกิน 100 ครั้งต่อชั่วโมง
- หากมอเตอร์มีกำลังไฟ > 4kW : ควรเปิด-ปิด ไม่เกิน 20 ครั้งต่อชั่วโมง
5. ควรเดินปั๊มภายในช่วงอัตราการไหลที่แนะนำ
- ควรเดินเครื่องภายใน ช่วงที่ระบุด้วยเส้นหนาในกราฟสมรรถนะ
- อัตราการไหลที่ต่ำเกินไปอาจทำให้ปั๊มร้อนเกินไป
- อัตราการไหลที่สูงเกินไปอาจทำให้มอเตอร์ทำงานหนักเกินไป
6. การป้องกันปั๊มจากน้ำแข็ง
- หากอุณหภูมิสภาพแวดล้อมต่ำกว่า 0°C ควรใช้มาตรการป้องกันน้ำแข็ง
- หากไม่ได้ใช้ปั๊มเป็นเวลานาน ให้ถ่ายน้ำออกจากปั๊ม เพื่อป้องกันความเสียหายจากการแข็งตัวของน้ำ
7. การตรวจสอบปั๊มเป็นประจำ
🔍 ตรวจสอบว่า แรงดันการทำงานของปั๊มอยู่ในช่วงที่กำหนด
🔍 ตรวจสอบว่ามี การรั่วไหลของปั๊มหรือท่อหรือไม่
🔍 ตรวจสอบว่า มอเตอร์ร้อนเกินไปหรือไม่
🔍 ทำความสะอาด/เปลี่ยนไส้กรอง
🔍 ตรวจสอบว่า ความถี่ในการเปิด-ปิดปั๊มอยู่ในช่วงที่กำหนดหรือไม่
8. การดูแลรักษาปั๊มเมื่อไม่ได้ใช้งานเป็นเวลานาน
ปั๊มควรถูกทำความสะอาดและเก็บรักษาอย่างเหมาะสม หากไม่ได้ใช้งานเป็นเวลานาน เพื่อป้องกันความเสียหายจากสิ่งสกปรกและการกัดกร่อน

เงื่อนไขการรับประกันสินค้า
สินค้า รับประกัน 12เดือน นับจากเดือนและปีที่ผลิต หรือ นับจากวันที่ซื้อสินค้าที่ระบุใบเอกสารการซื้อสินค้า (ผู้ซื้อต้องแสดงเอกสารการซื้อสินค้าในการส่งเคลม)
READ MORE
เงื่อนไขการรับประกันสินค้า
– เฉพาะกรณีที่เกิดความบกพร่องจากการผลิตหรือชิ้นส่วนวัสดุที่ใช้ในการผลิต
– การรับประกันไม่รวมถึงค่าใช้จ่ายอื่นๆ เช่น ค่าถอด/ติดตั้งอุปกรณ์ ค่าขนส่ง ค่าเดินทาง ค่าบริการนอกสถานที่ หรือค่าใช้จ่ายอื่นๆ ที่ไม่เกี่ยวข้องกับตัวสินค้า เช่น สายไฟ ท่อน้ำ ข้อต่อ เป็นต้น
– บริษัทฯ จะทำการซ่อมแซม หรือทดแทนด้วยสินค้าใหม่ เป็นไปตามเงื่อนไขประกอบการพิจารณาของบริษัทฯ
– ชิ้นส่วนที่ได้รับการซ่อมแซมจะได้รับการรับประกันตามเวลาที่เหลืออยู่ของระยะเวลารับประกันเดิม หรือภายใน 180 วัน นับแต่วันที่ได้รับการซ่อมแซม (ขึ้นกับระยะเวลาใดจะนานกว่า)
– การรับประกันครอบคลุมเฉพาะภายในประเทศไทยเท่านั้น และขอสงวนสิทธิ์ในการงดให้บริการในพื้นที่เสี่ยงอันตราย หรือพื้นที่ที่เข้าไม่ถึง สถานที่อับอากาศ สถานที่ที่มีควัน หรือไอสารเคมี และพื้นที่ห้ามเข้าในทุกกรณี
– การรับประกันไม่ครอบคลุมถึงสาเหตุดังต่อไปนี้
1) การติดตั้งใช้งานไม่ถูกต้องตามที่ระบุไว้ในคู่มือการใช้งาน
2) การใช้งานในสภาวะที่เกินกำลัง หรือใช้งานเกินความสามารถของสินค้า (Overload)
3) การใช้งานในสภาวะไม่เหมาะสม เช่น ใช้ปั๊มน้ำในสภาวะน้ำแห้ง หรือน้ำน้อย ใช้ปั๊มน้ำกับน้ำที่เป็นกรดหรือด่าง หรือใช้ปั๊มน้ำกับน้ำที่มีอุณหภูมิสูงเกินกว่าที่ระบุในคู่มือการใช้งาน
4) การใช้งานสินค้าผิดประเภท หรือไม่เหมาะสมกับชนิดของสินค้า
5) การใช้งานที่ประมาท หรือขาดการดูแลรักษา ซึ่งส่งผลให้เกิดความเสียหายต่อชิ้นส่วนต่างๆ
6) ทำการแก้ไข ต่อเติม ถอด/ประกอบชิ้นส่วน หรือดัดแปลงสินค้า
7) ปรากฎการณ์ทางธรรมชาติ เช่น น้ำท่วม ฟ้าผ่า หรือภัยธรรมชาติอื่นๆ
8) ไฟไหม้ สารเคมี แก๊ส หรือความเสียหายจากสัตว์และแมลงต่างๆ
9) กระแสไฟหรือแรงดันไฟฟ้าผิดปกติ อุปกรณ์ควบคุมหรืออุปกรณ์ไฟฟ้า เช่น เต้าเสียบ เบรคเกอร์ ไม่สมบูรณ์
10) ความเสียหายจากการเคลื่อนย้ายสินค้า การติดตั้งคืน หรือการขนส่ง รวมทั้งเครื่องจักรหรืออุปกรณ์อื่นๆ ที่ต่อร่วมกับตัวสินค้า
